
联 系 人:翁小姐
咨询热线:13622744908
电 话:400-999-8849
广州总部:广州市增城区仙村镇荔新八路6号世峰智造园5栋9楼
工厂地址:广东省鹤山市双合镇侨塘万洋众创城A3-1
汽车部件公司四向穿梭货架案例

项目详情
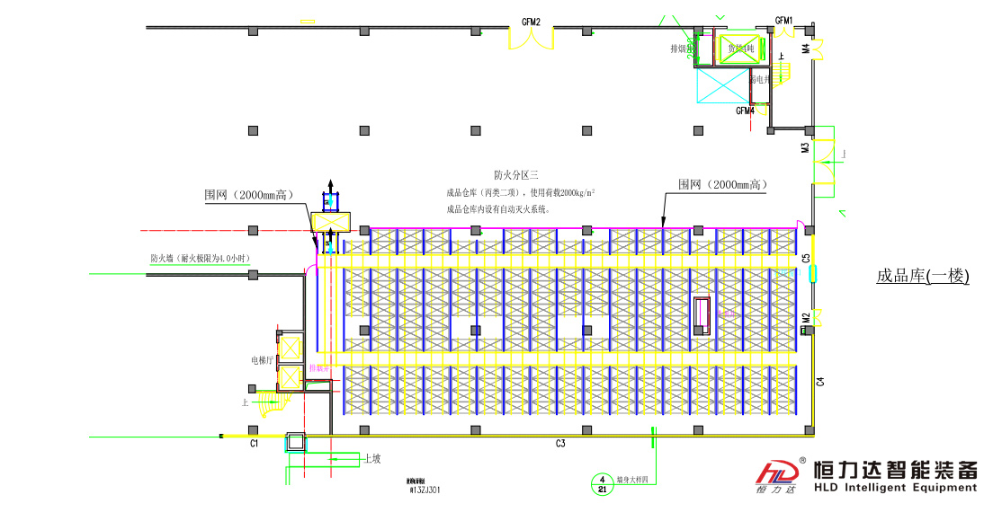
本项目为某汽车部件公司四向穿梭车货架项目,共设计3层货架603货位,配备2台托盘式四向穿梭车,1台提升机,1台输送机等相应的设备及软件系统。
方案图
现场实拍图
四向穿梭车货架系统特点
1、高密度储存,灵活设计货位深度
2、模块化设计,扩展性好,可根据不同效率要求增加穿梭车的数量;
3、对仓库高度、面积及不规则等要求不高;
4、紧急状态下的灵活应变能力强;
四向穿梭车货架系统优势
四向穿梭车货架系统具有高效、高密度、低成本的存储方式,其与驶入式货架相比,存储能力不相上下,但是货架整体安全性比驶入式货架高,货架不易损坏。
采用四向穿梭车货架系统,可极大地提高仓库内物料的密度、节省叉车存取物料的时间、减少工人工作时间。
热点资讯
-
货架厂家告诉你为什么要选择重型货架货架厂家告诉你为什么要选择重型货架
2020-09-27 -
仓储货架在互联网时代需要具备哪些特点仓储货架在互联网时代需要具备哪些特点
2020-09-22 -
广州仓储货架直销给购买方带来什么好处广州仓储货架直销给购买方带来什么好处
2020-10-28 -
冷库仓储货架的特点有哪些冷库仓储货架的特点有哪些
2020-08-18 -
广州仓储货架使用的三要和三不要的原则广州仓储货架使用的三要和三不要的原则
2020-06-28 -
仓库货架厂家的货架方案制定流程仓库货架厂家的货架方案制定流程
2020-06-11 -
提高仓库货架的稳定性两种方法提高仓库货架的稳定性两种方法
2020-06-10 -
定制广州仓库货架时需要注意什么定制广州仓库货架时需要注意什么
2020-10-28